装修房请设计师要多少钱-自己装修,请设计师画图,这样靠谱吗?

自己装修,请设计师画图,这样靠谱吗?
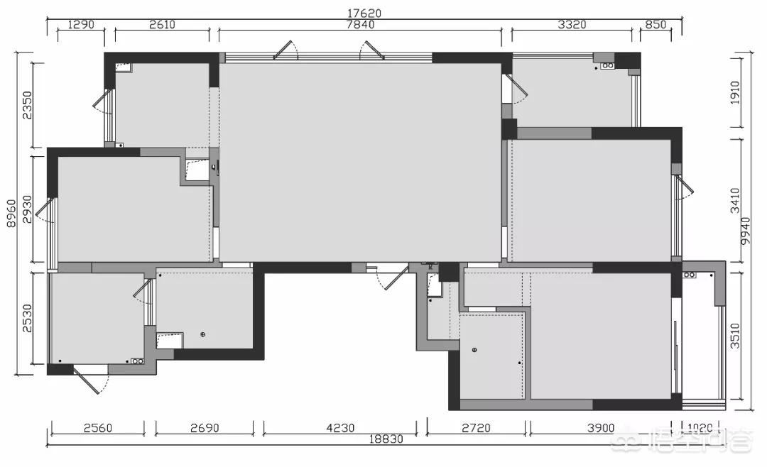
自己装修,请设计师画图,完全可以;但是,设计图纸要非常详细,最少要20----30张图纸,你才能按图施工装修,而且看图一目了然,不需要经常连续去问画图的人。为什么要那么多图纸,可以给你讲一讲,电气图,房间穿保护管的管线图,每个房间都有的,而且电线怎么布置,走天棚,走墙里,走地面,都要画出来,少一根也不行,你家里的配电箱里面各种空气开关,漏电保护器,都要画出来,并且每一个空气开关多少安培的电流都要画出来,一个空气开关供那一路电线,也要画出来,照明灯具,照明开关,插座都要在设计图中画出具体位置来,缺一不可,并且,需要多少米2.5平方电线,多少米4平方电线,各种规格的保护管各需要多少米,10A空气开关要几个,16A空气开关要几个,25A空气开关要几个,漏电保护器要几个,照明开关一位要几个,二位要几个,三位要几个,四位要几个,双控制开关要几个,10A插座要几个,16A插座要几个,25A插座要几个,有的开关插座并在一起的,需要多少个,开关安装高度,插座安装高度也要在图纸上标明,等等你想一想,要多少张电气图纸,土建和水的图纸都是这样的,你拿到图纸就可以施工了。
如果设计图纸只有几张,那么装修中够你忙一阵子的,图纸画的不详细,这里少东西,那里少东西,你就摸不着头脑,要一天到晚打电话问画图的人,这种画图的人你还是不要他画设计图了。他是混日子的,不靠谱。
农村自建房找人装修设计要多少钱?
很高兴和大家探讨这个问题
首先是我个人所见,大部分农民建房,都没多大要求,
第一,农民建好房子,就不易宜,加上经济不足,能省之省,
第二,农民必定是有钱人少,大部分都是自己设计,
第三,农民有钱的必定少,咱也不说人家了,
第四,农民赚点钱不易宜,所以设计方面,没那么大的讲究,所以花钱就会少,
- 装修跟设计是两个概念,设计有设计的费用,装修有装修的费用。
- 但是有一点,如果你想搞好一点,最好去请设计师来,我就吃过亏,自己装了拆,拆了再装,费用远远高于请设计师的费用。

- 讲讲常规价格
- 设计免费,好多公司都是打这种广告语,为什么免费设计呢,羊毛出在羊身上,你要请他们公司来装修,还有一种是刚毕业的设计师练手使用,用来提高自身水平!
- 500—1000的设计费用,就是设计服务费。设计师到你家勘察过,绘制好图纸,这种收费的设计师从业也有两三年,有一些经验跟想法,设计出来的方案可能会比免费的好一点。

- 有些是按平方收费的,相对于免费或按单收费,按平方收费的价格最贵,这类设计师在行业兄有一定的知名度,设计师有自己的设计理念跟技巧,还会加入业主的风格及思想在里面,虽然收费贵,但是设计出来的效果一般都能达到业主的要求。
- 国家公布的最新室内设计收费标准
- 普通设计师:50—100元/平方
- 主任设计师150元/平方起
- 高级设计师300元/平方起
- 再说说装修费用,装修费还是要靠你自己需要的档次来定的,农村一层楼150平方,通常花费七八万就很好了,当然如果要更加上档次,再高的价格都有!

- 不一一列举具体物价了,比如说地砖每平方200元这种,如果细分,还是要根据你个人需要来定的。
1:首先确认一下自己想建一个什么风格的房子。
2:要考虑一下自己的经济状况,预算投入资金多少3:考虑实际地形地貌,所建的房子风格与隔壁周边 环境是否融合。
4:询问一下房子布局是否符合风水。
5:家庭成员人员数量多少,如何安排,该风格的设计布局是否实用与舒适,合理。
考虑以上几点因素,根据自己实际综合情况,在网上搜索一下设计风格与你相似的设计图(有免费的),凭该图给经验丰富的包工头出尺寸图,钢筋布局图,建房框架结构承包给包工头,都会免费帮你解决的。
框架结构包含(地基,楼层封顶,内外墙身扇灰及贴外墙砖等)一般按目前市场价格包工包料在600-700元一个平方,
真正可以体验房子的高品质与人性化,合理性等,最重要的就是室内设计,框架设计风格确定后,室内设计专业性会让你整个房子整体风格更加完美。
室内设计可以只负责出图纸,协助监工,不包材料的,熟人都要1万多元,如果包工包料包监工完成验收,这个费用就不好评估了,因为建房50万,装饰200万的事情是很正常的。
实在不行,想省点钱,就自己在别人的作品上抄袭一下,但是,效果会是形似神不似。




农村自建房室内装修设计与商品房室内设计还是有区别的,自建房室内设计更加注重实用简单,对于空间实用方面应该显示大气一些
对于室内装修设计收费情况,一般在50~100元/平米左右,具体以时间装修设计面积为准的,有的设计师报价会在100~300元/平米左右,而对于大城市设计师收费有的会高于300元/平米
可以根据自己装修预算情况寻找价格合适的设计师
希望虫筑室内设计能够帮到你


装修要不要找设计师?请设计师就是浪费钱吗?
装修找不找设计师?我的立场肯定客观不了,所以说在前面:“装修一定要请设计师!”别走别走,我不是在给自己打广告,后面的内容绝对有理有据,不带私心。

先思考一个问题,家和出租屋的差别在哪里?
当我租房时,我更愿意把它称为宿舍,合租房客称为室友,下班了会说“我回去了”而不是“我回家了”。

虽然经过改造出租屋也可以很温馨,却不会有家的质感,爆改出租屋的目的只是“花最少的钱让房间看起来好看”。比如可以直接贴在瓷砖地面上的地板革

还有9.9包邮的墙纸,贴墙贴家具无所不能

即使这么强大,一到正经装修,你还是会买地板和无纺布墙纸,会用地板革和9.9墙纸的也只有出租屋和学生宿舍了。想一想,那可是要住几十年的自己的房子,它不仅要有人情味,适合居住,还要有代表了我的品味和质感。

贰
再思考第二个问题,设计师能带给你什么?
越来越多的年轻人在装修新房时选择先找设计公司,而不是施工队直接进场。但还是有一部分老思想的人会说:钱多花不完了,我去找设计师?房子随便装装不就能住了。

于是随便装装成了这样——金灿灿的吊顶,五花肉一样的地面,再配上全屋碎花,绝了。

黄金电视背景墙,彰显主人的品味与财力。

我听见雨滴落在青青草地一样鲜艳的绿色,加上梦幻蓝,也是绝配。

和别人家一比,瞬间土得掉渣啊!
住不了两年,你肯定受不了要重新装了,这才是真的浪费钱。

也有些人看到有在线设计的网站,于是跃跃欲试,自己去琢磨效果图,准备研究研究自己装修。
我直接说了,能成功的人少之又少,因为有些东西设计师有,你没有。
审美
审美的第一步是会辨别美丑,第二步是会搭配,我们大多数人都停留在第一步,知道什么是美的,就以为自己也可以设计出美的东西,这是一种错觉。
这叫“一看就会,一做就废”,有质感的家居靠的不是money(其实也是),不是用料(其实也是),而是软硬装的一体化设计,风格、色彩、材料、光影之间的元素搭配,从而能营造出舒适的室内环境。

这是设计师独有的技能,没有一定的美感和艺术基础是做不到的。
户型设计
遇到鸡肋户型怎么办?找设计师拯救啊。
在你眼中毫无办法的奇葩户型,在设计师手下都会找到新的出路,提高空间利用率,一房变两房变三房,不是说说而已。

不仅是鸡肋户型,方正户型也需要进行空间优化,比如说上周六飞墨更新的作品,原户型没有异形空间,户型整体很方正,似乎没有缺陷。但在设计师改造后,却实现了公共区域(客餐厨)和私人区域(卧室)的最大优化,这就是对家的升级。


把控整体与细节
回家进门脱下衣服没地方放,只能堆在单人沙发上;
沙发上躺一会,想看本书发现光线太暗;
睡前想给手机充个电,发现床头插座不够用,还得拖插线板;
柜子太少东西太多,家里乱七八糟没法做收纳;
卫生间装马桶没有注意坑距,最后留下一条缝……
为什么我家装修遗憾那么多?因为你是个装修门外汉,忽视了很多装修细节,也把控不住整体的空间布局。

找一个设计师,能让你少操心少走弯路。
质量监控
设计师还要做到把控预算、控制装修进程、监督装修质量等,负责的设计师会全程跟踪,去工地比你这个业主还勤快。

叁
第三个问题,找什么样的设计师?
现在很多商家做活动打着免费设计的名头,先说一句,免费的东西也许是好东西,免费的设计却一定是烂设计。
你我本无缘,全靠你花钱,不赚你钱只有两个可能,要么敷衍随便给你个图纸,要么在其他地方挖好坑等着你了。不管是哪种,结果你都承担不起。

专业的设计师费用不低,也不是几千块钱给你画个图纸的事,他得负责全案服务,这种一般都是一两百一平起步,但却能给你提供详细的讲解和服务,从签订合同到完工,全程跟踪直到你住进新家。

现在你知道该找什么样的设计师了吧,如果你觉得设计个图纸一两万太贵,户型也不需要优化,准备自己上手也可以。

前提是你要在短时间内快速搞懂室内设计+做足装修功课+3-6个月的空闲时间+有着跑马拉松的耐力+能接受各种不完美。
觉得文章有用就打赏一下文章作者
支付宝扫一扫打赏

微信扫一扫打赏


 admin
admin
还没有评论,来说两句吧...