家装设计图怎么画-家装水电平面图怎么画?

家装水电平面图怎么画?
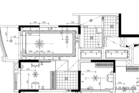
1、首先,设计水电,要预先想到各个地方需要哪些东西,才能去画水电图。

2、比如厨房、阳台,洗手间都需要水轮头,就需要设计水和电。

3、每个空间都要设计电位,还有插座充电,用电的需要。

4、设计水电,在工程制图里面,水电是有行业标准的,每个图表示什么意思都需要清楚。



5、安装位置有一定的标准,比如开关一般在1.3米的位置,插座很多离地面是0.3米。

6、画好图以后,再用电线把这些原件,器件连接起来,形成一个通路就是水电图了。

房子装修设计画里面东西的图在电脑用什么软件画的?
设计施工图纸是设计师用AutoCAD或是天正建筑软件画的;如果是开发商宣传单上的平面示意图是用Photoshop或是CorelDROW画的,有三维效果的图是用3ds max先建模、渲染出图后用photoshop后期修饰完成的。
画装修效果图用什么软件?
目前装修效果图设计师一般都用3dmax和vray等专业软件,如果没有基础的话,你可以用【爱福窝】在线装修设计效果图软件,都不用下载安装,随时随地都好使用,很方便,还能3D切换查看,分分钟就可出效果图,墙纸地板家具等丰富多样,拖拽进户型图就可以使用了,很方便,多尝试总会有你满意的效果。
如果是制作装修效果图,那我觉得三点很重要:
1 光线很重要,灯光以及门窗的合理设置出来的效果图曝光才会正常
2 颜色搭配很重要,最好不要超过三个色系,当然了小件的摆饰品除外
3 “拍照”的角度也重要,你可以去补一点摄影学,有时候换个角度拍同一个场景给人差别还是很大的。
做到以上三点我觉得效果图不会差到哪里去,祝好运。
家装设计师作图一定要好吗?
效果图的效果好一定会让客户大大心动,但也不是一定的。我个人觉得最重要的是你在客户心中的信任度,你的专业能力,沟通能力,能让客户一有问题,但是马上想到你就安心了,我想他会选择你的。[玫瑰][玫瑰][玫瑰]
作为室内设计师,你是自己画效果图,还是找别人画呢?比如专业画效果图的工作室?
我发表一下这么多年设计师经验吧。 作为一名合格的设计师,从专业角度来说,个人觉得自己考虑方案后,如果会做会表现,还是自己做,为什么呢?作图员理解不了你想要的,你去沟通需要费很多心思,找很多参考图片给作图员看,一个效果方案也并不是做做图,它里面包含软装的配饰,色彩,灯光,所以一个只会作图的没有那么多年经验,是把控不了的。 还有另外一种,就是中途转设计师或非专业设计师,他们根本不会作图,那他们参考的依据是什么?他们只会翻书,在设计书里选取自己想要的造型,场景,然后柔和到方案里,给作图员看,一个成熟的作图员自然很明白他要的风格,最后只不过在作图员做的基础上进行微调而已。 这就是我在设计公司多年经验得来的,所谓的助理也是可以的,只不过做的不好而已。 给你看两个图,第一个是助理做的,第二个是本专业出身的设计师做的,可以比较一下。 但是也不排除,也有很好的作图员哈,因为他们也具备了设计师的理念。我很忙的时候,也会找专业作图的,不专业不行的[偷笑]


觉得文章有用就打赏一下文章作者
支付宝扫一扫打赏

微信扫一扫打赏


还没有评论,来说两句吧...